Появились вопросы? Звоните: +375 29 681-61-61

Колос

Типовой проект и планировки
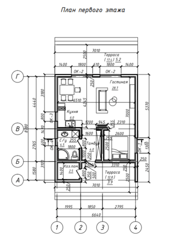
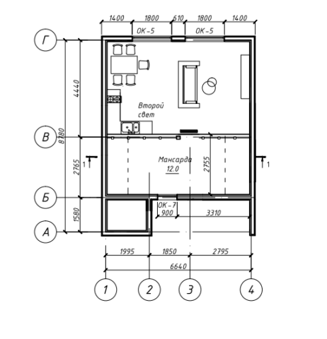
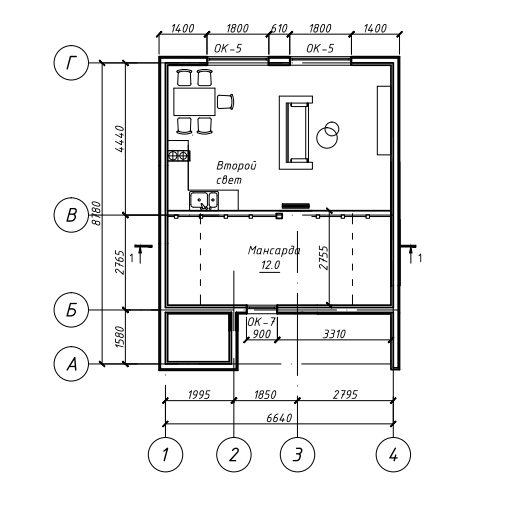
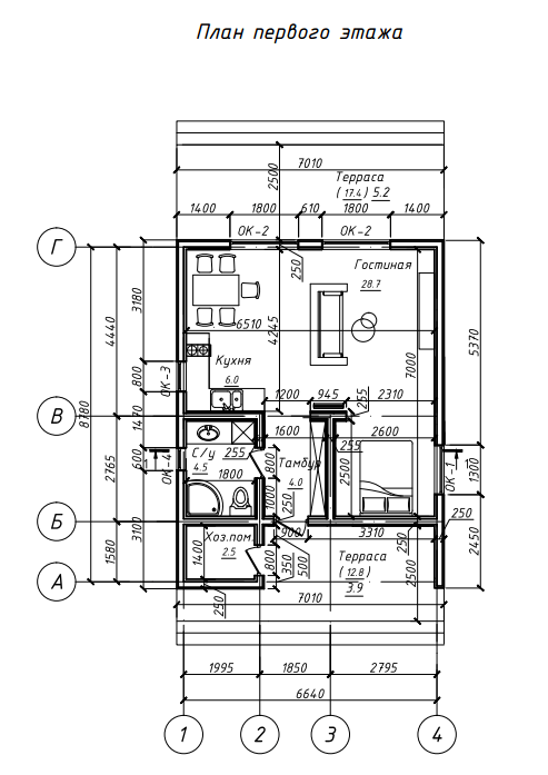
67 м2
комнат 2
Возможны
изменения в проекте
Назначение строения гостевой дом/для постоянного проживания
Тип строения каркасный дом
Стеновой материал сосна/ель технической сушки
Общая/жилая площадь 66,8/40,7 м2
Высота 5/2,5 м
Угол кровли 45 ˚
Площадь кровли 65 м2
Количество комнат 3
Проект эскизный
Перепланировка бесплатно
Высота этажа 2,5 метра
Лаги пола обработаны антисептиком
Доставка бесплатно по всей Беларуси
Сборка бесплатно
Внутренняя отделка имитация бруса
Свайно-винтовой фундамент бесплатно
Уточняйте цену

Консультация

Дополнительная информация
Комплект «Стандартный» Цену уточняйте
Фундамент: Свайный (по запросу: ленточный, свайно-ростверковый, монолитный);

Обвязка — брус 150х150 мм;

Полы: Лаги — брус 45х200 мм строганный, тех. сушки (обработка антисептиком LignoFix Stabil Extra на производстве), шаг 600 мм;

Подшивка пола под утеплитель — ЦСП толщина 8мм;

Гидроизоляция- гидроветрозащитные пленки STROTEX 110 РР;

Пароизоляция — пароизоляционные пленки STROTEX 110 РI;

Утепление — каменная вата (плотность 27-30 кг/м.куб), толщина утепления 150 мм;

Каркас дома: Стойка — доска тех.сушки строганная 45х145 (обработка антисептиком LignoFix Stabil Extra на производстве);

Обвязка —  доска тех.сушки строганная 45х145 (обработка антисептиком LignoFix Stabil Extra на производстве);

Обрешетка — брусок тех.сушки строганный 35х45 (обработка антисептиком LignoFix Stabil Extra на производстве);

Силовая зашивка — ОСБ 11 мм;

Утеплитель — каменная вата (плотность 27-30 кг/м.куб), толщина утепления 150 мм ;

Гидроизоляция- гидроветрозащитные пленки STROTEX 110 РР;

Пароизоляция — пароизоляционные пленки STROTEX 110 РI;

Отделка — фасадная доска 28х120 (односторонняя зашивка) (по запросу: Блок-Хаус, ЦСП, фиброцементный сайдинг, штукатурка);

Перегородки: Стойка — доска тех. сушки строганная  45х95  (обработка антисептиком LignoFix Stabil Extra на производстве);

Обвязка — доска тех. сушки строганная 45х95  (обработка антисептиком LignoFix Stabil Extra на производстве);

Утеплитель — каменная вата (плотность 40 кг/м.куб), толщина утепления 100мм;

Терраса: Лаги — брус 45х200 мм строганный, тех. сушки (обработка антисептиком LignoFix Stabil Extra на производстве);

Покрытие террасы — чистовая строганная доска;

Перекрытие чердачное: Стропильные ноги — Доска тех. сушки  строганная 45х200  (обработка Neomid 435-ECO на производстве);

Торцевая зашивка — Доска тех. сушки  строганная 45х200 (обработка антисептиком LignoFix Stabil Extra на производстве);

Пароизоляция — пароизоляционные пленки STROTEX 110 РI;

Подшивка перекрытий под утеплитель — ОСП-3, 9 мм влагостойкая;

Утеплитель — каменная вата Акустик  (плотность 40 кг/м.куб), толщина утепления 150 мм;

Стропильная система: Стропильные ноги — Двутавровые Балки СОЛВЕР 300 60х45 (обработка антисептиком LignoFix Stabil Extra на производстве);

Обрешетка крыши — доска тех. сушки 32х100 (обработка антисептиком LignoFix Stabil Extra на производстве);

Контробрешетка крыши — брусок тех. сушки строганный 45х45 (обработка антисептиком LignoFix Stabil Extra на производстве);

Гидроизоляция- мембрана супердиффузионная STROTEX 1300 basic;

Утеплитель — каменная вата  (плотность 27-30 кг/м.куб), толщина утепления 200 мм;

Кровельное покрытие: Кровельный профилированный лист (по запросу: фалец, битумная черепица);
Крепежи: Оцинкованный крепеж (уголки, пластины, саморезы и т.д);
Комплект «Под ключ» 50 400 рублей
Фундамент: Свайный (по запросу: ленточный, свайно-ростверковый, монолитный);

Обвязка — брус 150х150 мм;

Полы: Лаги — брус 45х200 мм строганный, тех. сушки (обработка антисептиком LignoFix Stabil Extra на производстве), шаг 600 мм;

Подшивка пола под утеплитель — ЦСП толщина 8мм;

Гидроизоляция- гидроветрозащитные пленки STROTEX 110 РР;

Пароизоляция — пароизоляционные пленки STROTEX 110 РI;

Утепление — каменная вата (плотность 27-30 кг/м.куб), толщина утепления 200 мм;

Отделка полов — чистовая строганная доска;

Каркас дома: Стойка — доска тех.сушки строганная 45х145 (обработка антисептиком LignoFix Stabil Extra на производстве);

Обвязка —  доска тех.сушки строганная 45х145 (обработка Neomid 435-ECO на производстве);

Обрешетка — брусок тех.сушки строганный 35х45 (обработка антисептиком LignoFix Stabil Extra на производстве);

Контробрешетка — брусок тех. сушки строганный 45х45 (обработка антисептиком LignoFix Stabil Extra на производстве);

Силовая зашивка — ОСБ 11 мм;

Утеплитель — каменная вата (плотность 50 кг/м.куб), толщина утепления 200 мм ;

Гидроизоляция- гидроветрозащитные пленки STROTEX 110 РР;

Пароизоляция — пароизоляционные пленки STROTEX 110 РI;

Отделка наружная — фасадная доска 28х120 (по запросу: Блок-Хаус, ЦСП, фиброцементный сайдинг, штукатурка);

Отделка внутренняя — имитация бруса СОРТ АВ 17х146 (по запросу: вагонка, ЦСП, гипсокартон);

 

Перегородки: Стойка — доска тех. сушки строганная 45х95 (обработка антисептиком LignoFix Stabil Extra на производстве);

Обвязка — доска тех. сушки строганная 45х95 (обработка антисептиком LignoFix Stabil Extra на производстве);

Обрешетка — брусок тех.сушки строганный 35х45 (обработка антисептиком LignoFix Stabil Extra на производстве);

Утеплитель — каменная вата «Акустик» (плотность 40 кг/м.куб), толщина утепления 100мм;

Отделка перегородок — имитация бруса СОРТ АВ 17х146 (по запросу: вагонка, ЦСП, гипсокартон);

Терраса: Лаги — брус 45х200 мм строганный, тех. сушки (обработка антисептиком LignoFix Stabil Extra на производстве);

Покрытие террасы — чистовая строганная доска;

Перекрытие чердачное: Стропильные ноги — доска тех. сушки  строганная 45х200 (обработка Neomid 435-ECO на производстве);

Торцевая зашивка — Доска тех. сушки  строганная 45х145 (обработка антисептиком LignoFix Stabil Extra на производстве);

Гидроизоляция- гидроветрозащитные пленки STROTEX 110 РР;

Пароизоляция — пароизоляционные пленки STROTEX 110 РI;

Утеплитель — каменная вата Акустик (плотность 27-30 кг/м.куб), толщина утепления 150 мм;

Отделка потолка 1-го этажа — потолочная рейка СОРТ АВ 12,5х90;

Стропильная система: Стропильные ноги — Двутавровые Балки СОЛВЕР 300 60х45 (обработка антисептиком LignoFix Stabil Extra на производстве);

Обрешетка крыши — доска тех. сушки 32х100 (обработка антисептиком LignoFix Stabil Extra на производстве);

Контробрешетка крыши — брусок тех. сушки строганный 45х45 (обработка антисептиком LignoFix Stabil Extra на производстве);

Гидроизоляция- мембрана супердиффузионная STROTEX 1300 basic;

Подшивка свесов кровли — имитация бруса сорт АВ 17х146 ;

Кровельное покрытие: Кровельный профилированный лист (по запросу: фалец, битумная черепица);
Водосточная система:  Docke пластик;
Дверь входная: Металлическая утепленная;
Двери межкомнатные: МДФ, эко-шпон (по запросу: массив);
Окна: Двухкамерные пластиковые стеклопакеты Rehau Grazio;
Крепежи: Оцинкованный крепеж (уголки, пластины, саморезы и т.д);
Наименования Стоимость
Водосточная система «Docke» (Германия) Цену уточняйте
Цокольный сайдинг «Docke» (Германия) или «Novik» (Канада) Цену уточняйте
Металочерепица «Monterrey» Цену уточняйте
Битумная черепица «Katepal» (Финляндия) или «Docke» (Германия) или «Gaf» (США) Цену уточняйте
Электрика Цену уточняйте
Сантехника Цену уточняйте
Отопления Цену уточняйте
Канализация Цену уточняйте
Покраска Цену уточняйте
Электроснабжение Расходы по электроснабжению бригады строителей и строительного оборудования обеспечивается за счёт заказчика. При отсутствии доступа к электричеству, заказчик оплачивает стоимость аренды генератора и расходы на топливо.
Проживание рабочих Заказчик должен обеспечить условия для проживания рабочих на участке. В случаи если такие условия обеспечить невозможно, то заказчик должен приобрести бытовку для проживания рабочих. Бытовка 3х2 метра, стоимость 5 миллионов рублей. По завершении строительных работ, бытовка остаётся на участке, которую можно использовать как хозблок.
Трудности подьезда При возникновении сложности подъезда на участок большегрузного транспорта, заказчик обеспечивает услуги манипулятора.
Популярные проекты
Проекты домов
м2
Цена по запросу