| Назначение строения | гостевой дом/для постоянного проживания |
| Тип строения | каркасный дом |
| Стеновой материал | сосна/ель |
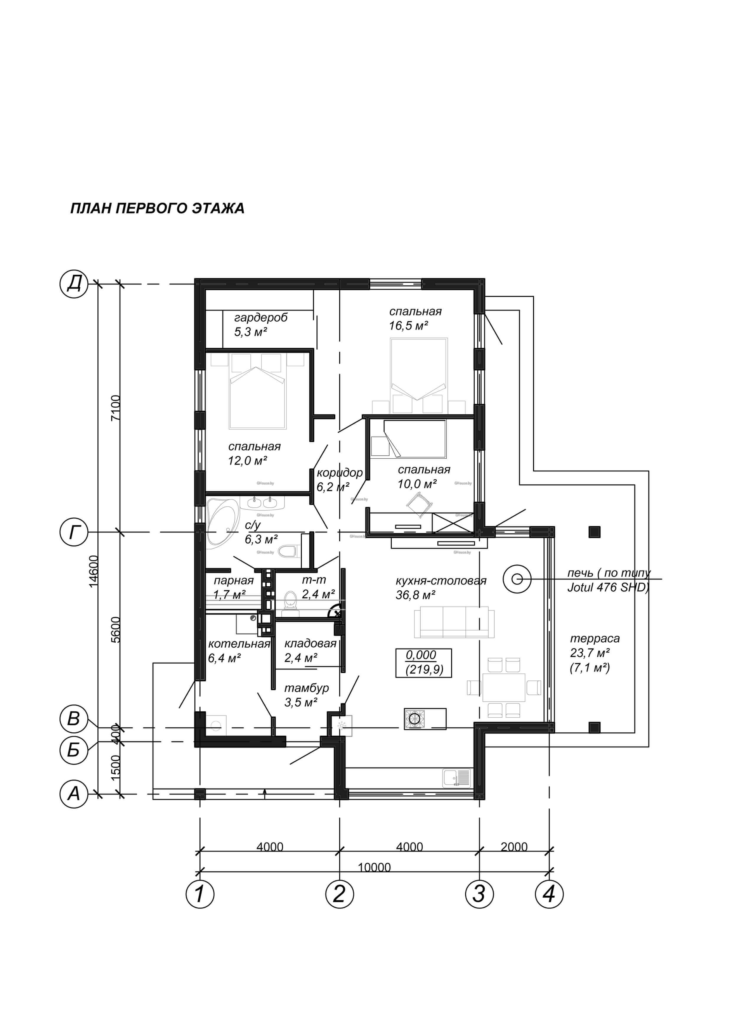
| Общая/жилая площадь | 116,6/86 м2 |
| Высота | 4,8 м |
| Угол кровли | 26 ˚ |
| Площадь кровли | 165 м2 |
| Количество комнат | 4 |
| Проект | эскизный |
Перепланировка бесплатно
Высота этажа 2,46 метра
Лаги пола обработаны антисептиком
Доставка бесплатно по всей Беларуси
Сборка бесплатно
Внутренняя отделка имитация бруса
Свайно-винтовой фундамент бесплатно
| Комплект «Стандартный» | Цену уточняйте |
| Фундамент: | Свайный (по запросу: свайно-винтовой, ленточный, свайно-ростверковый, монолитный);
Обвязка — брус 200х200мм; |
| Полы: | Лаги — брус 45х200 мм строганный, тех. сушки (обработка антисептиком LignoFix Stabil Extra на производстве), шаг 600 мм;
Подшивка пола под утеплитель — ЦСП толщина 8мм; Гидроизоляция- гидроветрозащитные пленки STROTEX 110 РР; Пароизоляция — пароизоляционные пленки STROTEX 110 РI; Утепление — каменная вата (плотность 27-30 кг/м.куб), толщина утепления 150 мм; |
| Каркас дома: | Стойка — доска тех.сушки строганная 45х145 (обработка антисептиком LignoFix Stabil Extra на производстве);
Обвязка — доска тех.сушки строганная 45х145 (обработка антисептиком LignoFix Stabil Extra на производстве); Обрешетка — брусок тех.сушки строганный 35х45 (обработка антисептиком LignoFix Stabil Extra на производстве); Силовая зашивка — ОСБ 11 мм; Утеплитель — каменная вата (плотность 27-30 кг/м.куб), толщина утепления 150 мм ; Гидроизоляция- гидроветрозащитные пленки STROTEX 110 РР; Пароизоляция — пароизоляционные пленки STROTEX 110 РI; Отделка — фасадная доска 28х120 (односторонняя зашивка) (по запросу: Блок-Хаус, ЦСП, фиброцементный сайдинг); |
| Перегородки: | Стойка — доска тех. сушки строганная 45х95 (обработка антисептиком LignoFix Stabil Extra на производстве);
Обвязка — доска тех. сушки строганная 45х95 (обработка антисептиком LignoFix Stabil Extra на производстве); Утеплитель — каменная вата (плотность 40 кг/м.куб), толщина утепления 100мм; |
| Терраса: | Лаги — брус 45х200 мм строганный, тех. сушки (обработка антисептиком LignoFix Stabil Extra на производстве);
Покрытие террасы — чистовая строганная доска; |
| Стропильная система: | Стропильные ноги — Двутавровые Балки СОЛВЕР 300 60х45 (обработка антисептиком LignoFix Stabil Extra на производстве);
Обрешетка крыши — доска тех. сушки 32х100 (обработка антисептиком LignoFix Stabil Extra на производстве); Контробрешетка крыши — брусок тех. сушки строганный 45х45 (обработка антисептиком LignoFix Stabil Extra на производстве); Гидроизоляция- мембрана супердиффузионная STROTEX 1300 basic; Утеплитель — каменная вата (плотность 27-30 кг/м.куб), толщина утепления 200 мм ; Пароизоляция — пароизоляционные пленки STROTEX 110 РI; |
| Кровельное покрытие: | Фальцевое GRAND LINE 0,5 мм (по запросу: металлочерепица, битумная черепица); |
| Крепежи: | Оцинкованный крепеж (уголки, пластины, саморезы и т.д); |
| Комплект «Под ключ» | 95 800 руб |
| Фундамент: | Свайный (по запросу: ленточный, свайно-ростверковый, монолитный);
Обвязка — брус 150х150 мм; |
| Полы: | Лаги — брус 45х200 мм строганный, тех. сушки (обработка антисептиком LignoFix Stabil Extra на производстве), шаг 600 мм;
Подшивка пола под утеплитель — ЦСП толщина 8мм; Гидроизоляция- гидроветрозащитные пленки STROTEX 110 РР; Пароизоляция — пароизоляционные пленки STROTEX 110 РI; Утепление — каменная вата (плотность 27-30 кг/м.куб), толщина утепления 200 мм; Отделка полов — чистовая строганная доска; |
| Каркас дома: | Стойка — доска тех.сушки строганная 45х145 (обработка антисептиком LignoFix Stabil Extra на производстве);
Обвязка — доска тех.сушки строганная 45х145 (обработка Neomid 435-ECO на производстве); Обрешетка — брусок тех.сушки строганный 35х45 (обработка антисептиком LignoFix Stabil Extra на производстве); Контробрешетка — брусок тех. сушки строганный 45х45 (обработка антисептиком LignoFix Stabil Extra на производстве); Силовая зашивка — ОСБ 11 мм; Утеплитель — каменная вата (плотность 50 кг/м.куб), толщина утепления 200 мм ; Гидроизоляция- гидроветрозащитные пленки STROTEX 110 РР; Пароизоляция — пароизоляционные пленки STROTEX 110 РI; Отделка наружная — фасадная доска 28х120 (по запросу: Блок-Хаус, ЦСП, фиброцементный сайдинг, штукатурка); Отделка внутренняя — имитация бруса 17х146 (по запросу: вагонка, ЦСП, имитация бруса); |
| Перегородки: | Стойка — доска тех. сушки строганная 45х95 (обработка антисептиком LignoFix Stabil Extra на производстве);
Обвязка — доска тех. сушки строганная 45х95 (обработка антисептиком LignoFix Stabil Extra на производстве); Обрешетка — брусок тех.сушки строганный 35х45 (обработка антисептиком LignoFix Stabil Extra на производстве); Утеплитель — каменная вата «Акустик» (плотность 40 кг/м.куб), толщина утепления 100мм; Отделка перегородок — имитация бруса 17х146 (по запросу: вагонка, ЦСП, имитация бруса); |
| Терраса: | Лаги — брус 45х200 мм строганный, тех. сушки (обработка антисептиком LignoFix Stabil Extra на производстве);
Покрытие террасы — чистовая строганная доска; |
| Стропильная система: | Стропильные ноги — Двутавровые Балки СОЛВЕР 300 60х45 (обработка антисептиком LignoFix Stabil Extra на производстве);
Обрешетка крыши — доска тех. сушки 32х100 (обработка антисептиком LignoFix Stabil Extra на производстве); Контробрешетка крыши — брусок тех. сушки строганный 45х45 (обработка антисептиком LignoFix Stabil Extra на производстве); Гидроизоляция- мембрана супердиффузионная STROTEX 1300 basic; Утеплитель — каменная вата (плотность 27-30 кг/м.куб), толщина утепления 250 мм ; Пароизоляция — пароизоляционные пленки STROTEX 110 РI; Подшивка потолков — потолочная рейка 13х90 (по запросу: Блок- Хаус, ГСП, вагонка); |
| Кровельное покрытие: | Фальцевое GRAND LINE 0,5 мм (по запросу: металлочерепица, битумная черепица); |
| Водосточная система: | Docke пластик; |
| Дверь входная: | Металлическая утепленная; |
| Двери межкомнатные: | МДФ, эко-шпон (по запросу: массив); |
| Окна: | Двухкамерные пластиковые стеклопакеты Rehau Grazio;
Витраж — дерево-алюминиевый стеклопакет; |
| Крепежи: | Оцинкованный крепеж (уголки, пластины, саморезы и т.д); |
| Наименования | Стоимость |
| Водосточная система «Docke» (Германия) | Цену уточняйте |
| Цокольный сайдинг «Docke» (Германия) или «Novik» (Канада) | Цену уточняйте |
| Металочерепица «Monterrey» | Цену уточняйте |
| Битумная черепица «Katepal» (Финляндия) или «Docke» (Германия) или «Gaf» (США) | Цену уточняйте |
| Электрика | Цену уточняйте |
| Сантехника | Цену уточняйте |
| Отопления | Цену уточняйте |
| Канализация | Цену уточняйте |
| Покраска | Цену уточняйте |
| Электроснабжение | Расходы по электроснабжению бригады строителей и строительного оборудования обеспечивается за счёт заказчика. При отсутствии доступа к электричеству, заказчик оплачивает стоимость аренды генератора и расходы на топливо. |
| Проживание рабочих | Заказчик должен обеспечить условия для проживания рабочих на участке. В случаи если такие условия обеспечить невозможно, то заказчик должен приобрести бытовку для проживания рабочих. Бытовка 3х2 метра, стоимость 5 миллионов рублей. По завершении строительных работ, бытовка остаётся на участке, которую можно использовать как хозблок. |
| Трудности подьезда | При возникновении сложности подъезда на участок большегрузного транспорта, заказчик обеспечивает услуги манипулятора. |