Появились вопросы? Звоните: +375 29 681-61-61

Сидней

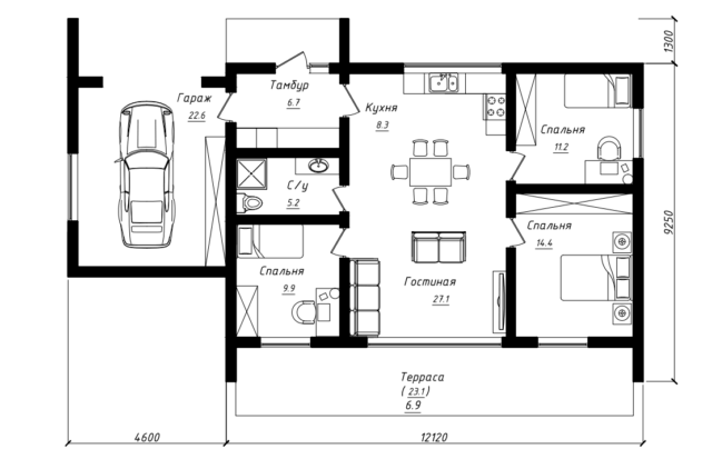
Типовой проект и планировки
112 м2
комнат 4
Возможны
изменения в проекте
Назначение строения гостевой дом/для постоянного проживания
Тип строения каркасный дом
Стеновой материал сосна/ель технической сушки
Общая/жилая площадь 112,3/62,6 м2
Высота 3 м
Угол кровли 2,5 ˚
Количество комнат 4
Проект эскизный
Перепланировка бесплатно
Высота этажа 3 метра
Лаги пола обработаны антисептиком
Доставка бесплатно по всей Беларуси
Сборка бесплатно
Внутренняя отделка имитация бруса
Свайно-винтовой фундамент бесплатно
Уточняйте цену

Консультация

Дополнительная информация
Комплект «Стандартный» Цену уточняйте
Фундамент: Свайно-ростверковый (по запросу: свайно-винтовой, ленточный, свайный, монолитный);
Полы: Теплоизоляция пола — экструдированный пенополистирол 35 кг/м.куб. толщина 100мм (без монтажа);

полиэтиленовая пленка 200мкм;

Каркас дома: Стойка — доска тех.сушки строганная 45х145 (обработка антисептиком LignoFix Stabil Extra на производстве);

Обвязка —  доска тех.сушки строганная 45х145 (обработка Neomid 435-ECO на производстве);

Обрешетка — брусок тех.сушки строганный 35х45 (обработка антисептиком LignoFix Stabil Extra на производстве);

Силовая зашивка — ОСБ 11 мм;

Утеплитель — каменная вата (плотность 27-30 кг/м.куб), толщина утепления 150 мм ;

Гидроизоляция- гидроветрозащитные пленки STROTEX 110 РР;

Пароизоляция — пароизоляционные пленки STROTEX 110 РI;

Отделка — плита ЦСП 12мм (односторонняя зашивка) (по запросу: Блок-Хаус, ЦСП, фиброцементный сайдинг, штукатурка);

Перегородки: Стойка — доска тех. сушки строганная  45х95  (обработка антисептиком LignoFix Stabil Extra на производстве);

Обвязка — доска тех. сушки строганная 45х95  (обработка антисептиком LignoFix Stabil Extra на производстве);

Утеплитель — каменная вата (плотность 40 кг/м.куб), толщина утепления 100мм;

Терраса: Лаги — брус 45х200 мм строганный, тех. сушки (обработка антисептиком LignoFix Stabil Extra на производстве);

Покрытие террасы — чистовая строганная доска;

Стропильная система: Стропильные ноги — Двутавровые Балки СОЛВЕР 300 60х45 (обработка антисептиком LignoFix Stabil Extra на производстве);

Обрешетка крыши — доска тех. сушки 32х100 (обработка антисептиком LignoFix Stabil Extra на производстве);

Контробрешетка крыши — брусок тех. сушки строганный 45х45 (обработка антисептиком LignoFix Stabil Extra на производстве);

Утеплитель — каменная вата (плотность 27-30 кг/м.куб), толщина утепления 200 мм ;

Гидроизоляция- мембрана супердиффузионная STROTEX 1300 basic;

Пароизоляция — пароизоляционные пленки STROTEX 110 РI;

Кровельное покрытие: ПВХ мембрана 1,5 мм (по запросу: фальцевая черепица, битумная черепица,металлочерепица);
Крепежи: Оцинкованный крепеж (уголки, пластины, саморезы и т.д);
Комплект «Под ключ» Цену уточняйте
Фундамент: Свайно-ростверковый (по запросу: свайно-винтовой, ленточный, свайный, монолитный);
Полы: Теплоизоляция пола — экструдированный пенополистирол 35 кг/м.куб. толщина 100мм (без монтажа);

полиэтиленовая пленка 200мкм;

Каркас дома: Стойка — доска тех.сушки строганная 45х145 (обработка антисептиком LignoFix Stabil Extra на производстве);

Обвязка —  доска тех.сушки строганная 45х145 (обработка Neomid 435-ECO на производстве);

Обрешетка — брусок тех.сушки строганный 35х45 (обработка антисептиком LignoFix Stabil Extra на производстве);

Силовая зашивка — ОСБ 11 мм;

Утеплитель — каменная вата (плотность 27-30 кг/м.куб), толщина утепления 150 мм ;

Гидроизоляция- гидроветрозащитные пленки STROTEX 110 РР;

Пароизоляция — пароизоляционные пленки STROTEX 110 РI;

Отделка наружная — плита ЦСП 12мм (односторонняя зашивка) штукатурка ,фасадная доска (по запросу: Блок-Хаус, ЦСП, фиброцементный сайдинг, штукатурка);

Отделка внутренняя — гисокартон стеновой 12,5мм 2 слоя  (по запросу: вагонка, ЦСП, имитация бруса);

Перегородки: Стойка — доска тех. сушки строганная 45х95 (обработка антисептиком LignoFix Stabil Extra на производстве);

Обвязка — доска тех. сушки строганная 45х95 ((обработка антисептиком LignoFix Stabil Extra на производстве);

Утеплитель — каменная вата Акустик (плотность 40 кг/м.куб), толщина утепления 100мм;

гисокартон стеновой 12,5мм 2 слоя  (по запросу: вагонка, ЦСП, имитация бруса);

Терраса: Лаги — брус 45х200 мм строганный, тех. сушки (обработка антисептиком LignoFix Stabil Extra на производстве);

Покрытие террасы — чистовая строганная доска;

Стропильная система: Стропильные ноги — Двутавровые Балки СОЛВЕР 300 60х45 (обработка антисептиком LignoFix Stabil Extra на производстве);

Обрешетка крыши — доска тех. сушки 32х100 (обработка антисептиком LignoFix Stabil Extra на производстве);

Контробрешетка крыши — брусок тех. сушки строганный 45х45 (обработка антисептиком LignoFix Stabil Extra на производстве);

Утеплитель — каменная вата (плотность 27-30 кг/м.куб), толщина утепления 200 мм ;

Гидроизоляция- мембрана супердиффузионная STROTEX 1300 basic;

Пароизоляция — пароизоляционные пленки STROTEX 110 РI;

Отделка потолков — натяжные потолки (по запросу: Блок- Хаус, ГСП, вагонка);

Кровельное покрытие: ПВХ мембрана 1,5 мм (по запросу: фальцевая черепица, битумная черепица,металлочерепица);
Водосточная система: «Металл профиль»;
Дверь входная: Металлическая утепленная;
Двери межкомнатные: МДФ, эко-шпон (по запросу: массив);
Окна: Двухкамерные пластиковые стеклопакеты Rehau Grazio;
Крепежи: Оцинкованный крепеж (уголки, пластины, саморезы и т.д);
Наименования Стоимость
Водосточная система «Docke» (Германия) Цену уточняйте
Цокольный сайдинг «Docke» (Германия) или «Novik» (Канада) Цену уточняйте
Металочерепица «Monterrey» Цену уточняйте
Битумная черепица «Katepal» (Финляндия) или «Docke» (Германия) или «Gaf» (США) Цену уточняйте
Электрика Цену уточняйте
Сантехника Цену уточняйте
Отопления Цену уточняйте
Канализация Цену уточняйте
Покраска Цену уточняйте
Электроснабжение Расходы по электроснабжению бригады строителей и строительного оборудования обеспечивается за счёт заказчика. При отсутствии доступа к электричеству, заказчик оплачивает стоимость аренды генератора и расходы на топливо.
Проживание рабочих Заказчик должен обеспечить условия для проживания рабочих на участке. В случаи если такие условия обеспечить невозможно, то заказчик должен приобрести бытовку для проживания рабочих. Бытовка 3х2 метра, стоимость 5 миллионов рублей. По завершении строительных работ, бытовка остаётся на участке, которую можно использовать как хозблок.
Трудности подьезда При возникновении сложности подъезда на участок большегрузного транспорта, заказчик обеспечивает услуги манипулятора.