Появились вопросы? Звоните: +375 29 681-61-61

Z 92

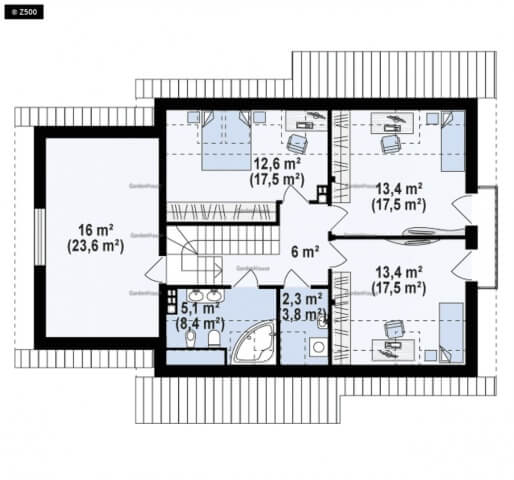
Типовой проект и планировки
175,5 м2
комнат 5
Возможны
изменения в проекте
Назначение строения гостевой дом/для постоянного проживания
Тип строения каркасный дом
Стеновой материал сосна/ель
Общая/жилая площадь 175,5/79,4 м2
Высота 2,5 м
Угол кровли 40 ˚
Площадь кровли 185 м2
Количество комнат 5
Проект эскизный
Перепланировка бесплатно
Высота этажа 2,5 метра
Лаги пола обработаны антисептиком
Доставка бесплатно по всей Беларуси
Сборка бесплатно
Внутренняя отделка имитация бруса
Свайно-винтовой фундамент бесплатно
Уточняйте цену

Консультация

Дополнительная информация
Комплект «Стандартный» Цену уточняйте
Фундамент: Свайно-винтовой, (по запросу: ленточный, свайно-ростверковый, монолитный);
Полы: Лаги — брус 45х200 мм строганный, тех. сушки (обработка Neomid 435-ECO на производстве), шаг 600 мм;

Подшивка пола под утеплитель — ОСП-3, 9 мм влагостойкая;

Гидроизоляция- гидроветрозащитные пленки STROTEX 110 РР;

Пароизоляция — пароизоляционные пленки STROTEX 110 РI;

Утепление — каменная вата HOTROCK Лайт ЭКО (плотность 27-30 кг/м.куб), толщина утепления 150 мм;

Каркас дома: Стойка — доска тех.сушки строганная 45х145 (обработка Neomid 435-ECO на производстве);

Обвязка —  доска тех.сушки строганная 45х145 (обработка Neomid 435-ECO на производстве);

Обрешетка — брусок тех.сушки строганный 22х45 (обработка Neomid 435-ECO на производстве);

Утеплитель — каменная вата HOTROCK Лайт ЭКО (плотность 27-30 кг/м.куб), толщина утепления 150 мм ;

Гидроизоляция- гидроветрозащитные пленки STROTEX 110 РР;

Пароизоляция — пароизоляционные пленки STROTEX 110 РI;

Отделка — имитация бруса (односторонняя зашивка) (по запросу: Блок-Хаус, ЦСП, фиброцементный сайдинг);

Перегородки: Стойка — доска тех. сушки строганная  45х95  (обработка Neomid 435-ECO на производстве);

Обвязка — доска тех. сушки строганная 45х95  (обработка Neomid 435-ECO на производстве);

Утеплитель — каменная вата HOTROCK Акустик (плотность 40 кг/м.куб), толщина утепления 100мм;

Терраса: Лаги — брус 45х200 мм строганный, тех. сушки (обработка Neomid 435-ECO на производстве);

Покрытие террасы — чистовая строганная доска;

Лестница межэтажная: Согласно проекта;
Перекрытие междуэтажное: Двутавровые Балки СОЛВЕР 300  95х45 (обработка Neomid 435-ECO на производстве);

Подшивка перекрытий под утеплитель — ОСП-3, 9 мм влагостойкая;

Утеплитель — HOTROCK Акустик (плотность 40 кг/м.куб), толщина утепления 150 мм;

Изоляция — пароизоляционные пленки STROTEX, поверхностная плотность 110 г/м.кв;

Стропильная система: Стропильные ноги — Двутавровые Балки СОЛВЕР 300 60х45 (обработка Neomid 435-ECO на производстве);

Обрешетка крыши — доска тех. сушки 25х95 (обработка Neomid 435-ECO на производстве);

Контробрешетка крыши — брусок тех. сушки строганный 45х45 (обработка Neomid 435-ECO на производстве);

Утеплитель — каменная вата HOTROCK Лайт ЭКО (плотность 27-30 кг/м.куб), толщина утепления 200 мм ;

Гидроизоляция- мембрана супердиффузионная STROTEX 1300 basic;

Пароизоляция — пароизоляционные пленки STROTEX 110 РI;

Кровельное покрытие: Ондулин (по запросу: металлочерепица, битумная черепица);
Крепежи: Оцинкованный крепеж (уголки, пластины, саморезы и т.д);

 

Комплект «Под ключ» Цену уточняйте
Фундамент: Свайно-винтовой, (по запросу: ленточный, свайно-ростверковый, монолитный);
Полы: Лаги — брус 45х200 мм строганный, тех. сушки (обработка Neomid 435-ECO на производстве), шаг 600 мм;

Подшивка пола под утеплитель — ОСП-3, 9 мм влагостойкая;

Гидроизоляция- гидроветрозащитные пленки STROTEX 110 РР;

Пароизоляция — пароизоляционные пленки STROTEX 110 РI;

Утепление — каменная вата HOTROCK БЛОК (плотность 50 кг/м.куб), толщина утепления 200 мм;

Отделка полов — чистовая строганная доска;

Каркас дома: Стойка — доска тех.сушки строганная 45х145 (обработка Neomid 435-ECO на производстве);

Обвязка —  доска тех.сушки строганная 45х145 (обработка Neomid 435-ECO на производстве);

Обрешетка — брусок тех.сушки строганный 22х45 (обработка Neomid 435-ECO на производстве);

Контробрешетка — брусок тех. сушки строганный 45х45 (обработка Neomid 435-ECO на производстве);

Утеплитель — каменная вата HOTROCK БЛОК (плотность 50 кг/м.куб), толщина утепления 200 мм ;

Гидроизоляция- гидроветрозащитные пленки STROTEX 110 РР;

Пароизоляция — пароизоляционные пленки STROTEX 110 РI;

Отделка — имитация бруса (двухсторонняя зашивка) (по запросу: Блок-Хаус, ЦСП, фиброцементный сайдинг);

Перегородки: Стойка — доска тех. сушки строганная 45х95 (обработка Neomid 435-ECO на производстве);

Обвязка — доска тех. сушки строганная 45х95 (обработка Neomid 435-ECO на производстве);

Утеплитель — каменная вата HOTROCK Акустик (плотность 40 кг/м.куб), толщина утепления 100мм;

Отделка перегородок — имитация бруса (двухсторонняя зашивка) (по запросу: Блок-Хаус, ГСП, вагонка);

Терраса: Лаги — брус 45х200 мм строганный, тех. сушки (обработка Neomid 435-ECO на производстве);

Покрытие террасы — чистовая строганная доска;

Лестница межэтажная: Согласно проекта;
Перекрытие междуэтажное: Двутавровые Балки СОЛВЕР 300  95х45 (обработка Neomid 435-ECO на производстве);

Подшивка перекрытий под утеплитель — ОСП-3, 9 мм влагостойкая;

Утеплитель — HOTROCK Акустик (плотность 40 кг/м.куб), толщина утепления 150 мм;

Изоляция — пароизоляционные пленки STROTEX, поверхностная плотность 110 г/м.кв;

Стропильная система: Стропильные ноги — Двутавровые Балки СОЛВЕР 300 60х45 (обработка Neomid 435-ECO на производстве);

Обрешетка крыши — доска тех. сушки строганная 25х95 (обработка Neomid 435-ECO на производстве);

Контробрешетка крыши — брусок тех. сушки строганный 45х45 (обработка Neomid 435-ECO на производстве);

Утеплитель — каменная вата HOTROCK БЛОК (плотность 50 кг/м.куб), толщина утепления 250 мм ;

Гидроизоляция- мембрана супердиффузионная STROTEX 1300 basic;

Пароизоляция — пароизоляционные пленки STROTEX 110 РI;

Подшивка потолков — имитация бруса (по запросу: Блок- Хаус, ГСП, вагонка);

Кровельное покрытие: Ондулин (по запросу: металлочерепица, битумная черепица);
Дверь входная: Металлическая утепленная;
Двери межкомнатные: Филенчатые, на петлях , без фурнитуры (по запросу:МДФ, Массив);
Окна: Двухкамерные пластиковые стеклопакеты;
Крепежи: Оцинкованный крепеж (уголки, пластины, саморезы и т.д);
Наименования Стоимость
Водосточная система «Docke» (Германия) Цену уточняйте
Цокольный сайдинг «Docke» (Германия) или «Novik» (Канада) Цену уточняйте
Металочерепица «Monterrey» Цену уточняйте
Битумная черепица «Katepal» (Финляндия) или «Docke» (Германия) или «Gaf» (США) Цену уточняйте
Электрика Цену уточняйте
Сантехника Цену уточняйте
Отопления Цену уточняйте
Канализация Цену уточняйте
Покраска Цену уточняйте
Электроснабжение Расходы по электроснабжению бригады строителей и строительного оборудования обеспечивается за счёт заказчика. При отсутствии доступа к электричеству, заказчик оплачивает стоимость аренды генератора и расходы на топливо.
Проживание рабочих Заказчик должен обеспечить условия для проживания рабочих на участке. В случаи если такие условия обеспечить невозможно, то заказчик должен приобрести бытовку для проживания рабочих. Бытовка 3х2 метра, стоимость 5 миллионов рублей. По завершении строительных работ, бытовка остаётся на участке, которую можно использовать как хозблок.
Трудности подьезда При возникновении сложности подъезда на участок большегрузного транспорта, заказчик обеспечивает услуги манипулятора.